Edward E Boynton House
Rochester’s own Frank Lloyd Wright masterpiece!
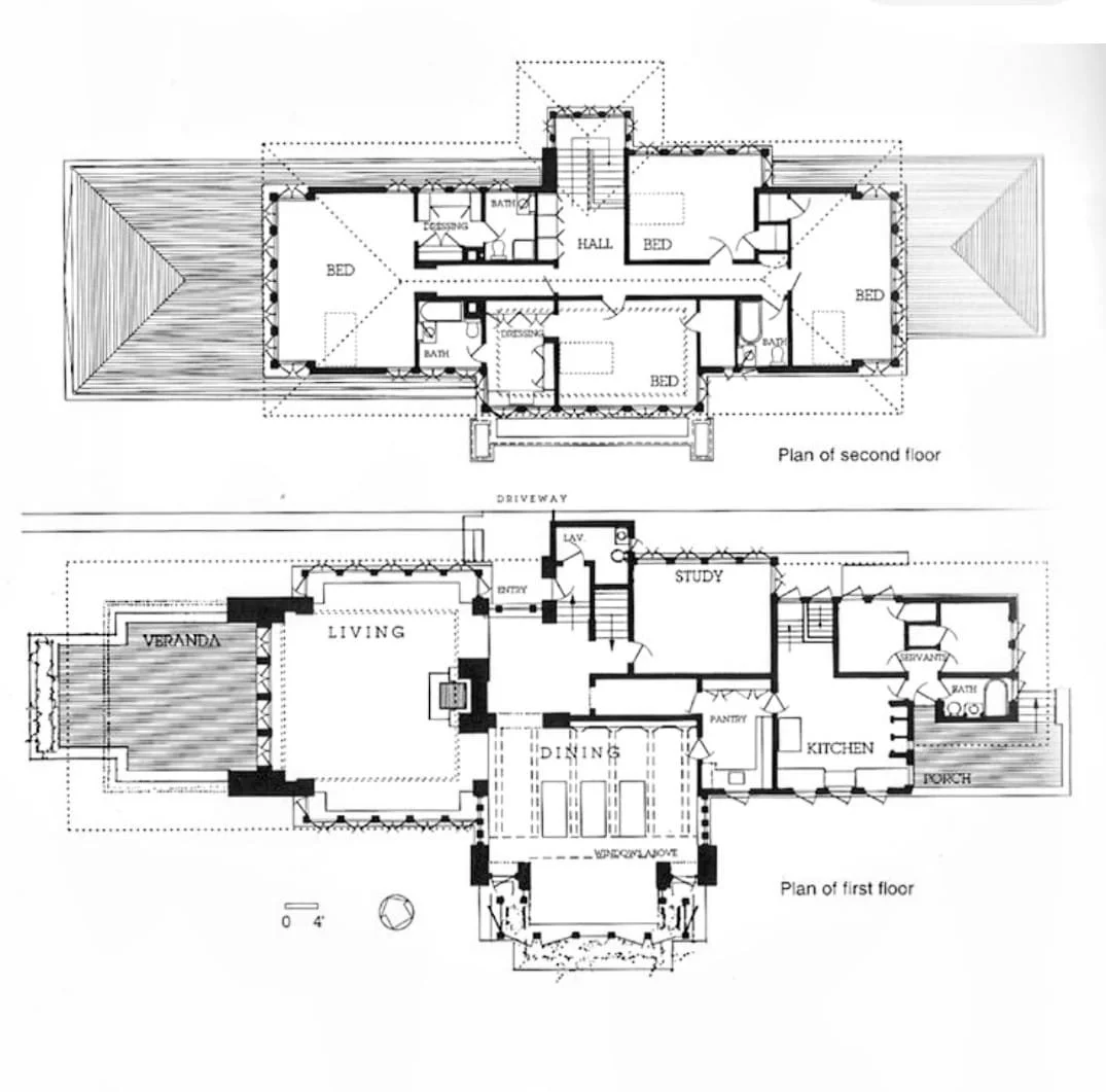
Originally built in 1908, the Edward E Boynton House in Rochester NY is a resplendent example of Wright's Prairie style; elongated horizontal planes, uninterrupted banks of leaded art glass windows, an imposing cantilevered porch that is even more impressive from atop than from the street.
The current owners undertook a meticulous, multi-year restoration of the property, which was documented by PBS and aired nationally.
In the 1920s the cantilevered front porch was enclosed with windows. The windows and inappropriate foundation plantings were removed as part of the extensive restoration work completed by the current owners.
The dining room is the house's tour de force exhibiting Frank Loyd Wright's mastery in shaping space in his unique Prairie style. The room exhibits the Japanese influence evident in much of Wright's work. The two Wright designed tables are original to the house.
Rehabilitated and expanded kitchen, creating a modern livable space while paying respect to the home's fundamentals.
1968 photo of the living room.
Living Room - present day
The stunning new garden designed by Bayer Landscape Architects pays homage to the lost garden designed by Wright. In a unique design partnership, Bayer and Bero executed a project that achieves aesthetic compatibility with Wright's house. Sadly, fewer and fewer contemporary architects and designers posess the training, knowledge, or discipline to create new work that harmonizes with historic buildings.
Some recent changes were intended to adapt the property to modern needs. A new garage that fits modern cars was built at the rear of the property. The garage was carefully designed in a compatible Prairie idiom by John Page at Bero Architecture. The garage is connected to the historic house by an open air pergola, with cantilevered roof, which spatially encloses one side of the new garden.
Pre restoration photo of the Boynton House. Notice the porch was enclosed in the 1920s. Wright was a guest lecturer in Rochester and stopped by the house. Upon noticing the addition, he is said to have stormed off in a rage and RANTED about it during his lecture later that day.
The restored cantilevered porch allows impressive, unobstructed views while maintaining surprising privacy
Originally the property was much larger and occupied the entire end of the block. The Wright-designed garden outside the dining room contained a reflecting pool. In the 1920's an owner facing financial difficulties sold off the south end of the property. Three large homes and a small townhouse block are located where a garden lawns and a tennis court were once located.
Passers by are wowed, slowing their cars to take in the magnificence of this architectural masterpiece, but few have had the opportunity to experience the interior of this private home.
But now on this exclusive basis, YOU can take in the splendor of this Frank Lloyd Wright architectrual gem, inside and out!
